永久独立产权 - “0”物业管理费
欢迎来到您位于Otara的新家
正在建造的八栋两层现代联排别墅位于奥克兰Otara。这些全新的住宅为奥克兰现代联排别墅的生活树立了新的标杆。这些奥克兰的全新住宅计划将于2025年完工。
室内设计
都市和现代化的设计
Cobham 联排别墅住宅提供了一个现代化的城市生活环境,精心打造的开放式生活布局。这些现代住宅坐享单独的停车空间,同时路边也设有大量的停车位。每栋住宅都配备优质的欧洲电器。户内柔和的审美设计为您呈现了永恒而干净的空间。
户型规格
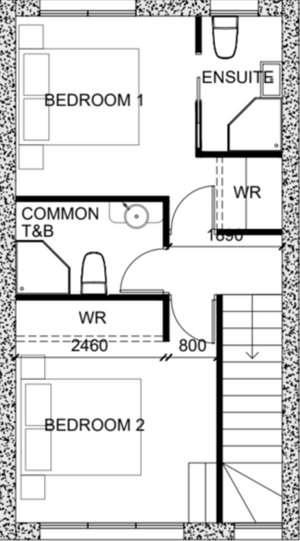
开发户型
单元号 | 销售状态 | 卧室 / 书房 | 卫浴 | 停车位 | 室内面积 |
|---|---|---|---|---|---|
1 | 待售 | 2 / 1 | 2 | 1 | 86.4m2 |
2 | 待售 | 2 / 0 | 1 | 1 | 80m2 |
3 | 待售 | 2 / 0 | 1 | 1 | 80m2 |
4 | 待售 | 2 / 1 | 2 | 1 | 86.4m2 |
5 | 待售 | 2 / 0 | 2.5 | 1 | 90m2 |
6 | 待售 | 2 / 0 | 2.5 | 1 | 90m2 |
7 | 待售 | 2 / 0 | 1 | 1 | 80m2 |
8 | 待售 | 2 / 1 | 2 | 1 | 86.4m2 |
单元 1, 4, 8
单元 2, 3, 7
单元 5, 6
基础设施
厨房、客厅和卧室净层高至2.4米起
厨房和卫生间铺设防滑地面
客厅和卧室铺设高奢品质地毯
混凝土中间墙,高性能抗震墙面板,4级墙面漆
全钢框架结构
全漆面室内门窗
Lockwood 或同品级门五金
高性能抗震天花板,4级墙面漆
所有区域LED照明
每件卧室配有推拉门衣柜
通讯/数据设置传输至起居空间
客厅和卧室配备空调/暖气
所有窗户配有卷帘,卫生间除外
卫浴
配备玻璃推拉门的瓷砖淋浴房
壁挂盥洗盆并配有高品质静音屉柜
Vitra 马桶盥洗配套设施(陶瓷)
通风设施
浴室梯式加热毛巾架
墙面镜柜
厨房
意大利花岗岩厨房台面
Florence系列意大利制造的橱柜
不锈钢水槽
Smeg 全套炉灶
Smeg 洗碗机
Smeg 烤箱
Smeg 吸油烟机
Smeg 厨余粉碎机
外墙结构
STO粉刷,彩钢,砖式高品质外墙系统
所有楼层均为钢筋混凝土结构
采用防水、钢筋混凝土结构的ICF施工体系
彩钢Metalcraft屋顶和排水沟或同品及设施
APL双层釉面铝门窗框
地形规划图
COBHAM 开发项目
八栋双层现代联排别墅
25 COBHAM CRESCENT
坐落于 Otara
位于奥克兰以南,周边临近所有必要设施 - 商店,餐馆,学校,公交车站等。驱车一小段路程即可抵达 Middlemore 医院, Otara山谷度假区以及Otara社区中心。
售价 $950,000起
即将问世 2025
联络我们:
地址
Shorcom Limited
199A Lincoln Road
Henderson
Auckland
电话
0800 746 726












